- 敷金・礼金無料
- 光熱費賃料込
インターネット使い放題・U-NEXT一般作品見放題プラン有
- 入居可能人数 1名
- 保証人 要確認
- ネット環境
基本料金プラン
お見積りの計算方法(日割り等)は運営会社によって異なります。当サイトからの見積もり依頼は24時間対応中です。
見積書を依頼-
短期プラン|Oランク 30日以上~181日未満
- 月額目安
- 138,600円~
- 初期費用他
- 68,200円〜
-
部屋利用料
4,620円/日
-
マンスリー手数料
51,700円/回
-
鍵交換費
16,500円/回
-
同居人追加利用料
110円/日
最短30日から最長180日まで1日単位でご利用可能
※同居人は最大3名様までとなります。
オプション
ウィークリー・マンスリーマンション物件の設備
- 建物設備
- 駐輪場
- TVドアホン
- 部屋設備
- エアコン
- バス・トイレ別
- 温水洗浄便座
- 浴室乾燥機
物件概要(お問合わせNo.410598)
※水・光熱費 不要
※家具・家電付
※マンスリーランクはA~Zの26ランクがございます。
※マンスリーランクに応じた部屋利用料とマンスリー手数料がそれぞれ設定されております。マンスリーランクは予告無く変更される場合がございます。
※マンスリー手数料とは契約時に必要な手数料であり、キャンセルされた場合でも返金の対象となりません。
※お支払いは、ご契約時に一括前払いとなります。
※入居者の故意・過失による物件・設備への損傷が生じた場合、退室時に補修費用が必要となる場合があります。
| 所在地 | 大阪府高槻市城南町4丁目 レオパレスNKサウスキャッスル | ||
|---|---|---|---|
| アクセス |
阪急電鉄京都線
「高槻市駅」
徒歩25分 |
||
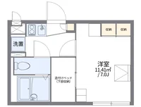
| 間取り | 1K | 利用可能人数 | 1名 |
| 築年数 | 2008年02月 築18年 | ||
| 面積 | 19.87m² | ||
| インターネット | |||
| 建物構造 | 木造 | ||
| 物件種別 | アパート | ||
| 駐車場 | |||
| 建物階数 | 地上2階 | 総戸数 | 24戸 |
| 契約形態 | その他 | 取引態様 | 貸主 |
| 部屋の向き | 鍵の種類 | ||
| ベッドタイプ | その他 | ||
| 保証人 | 要確認 | ||
| ご利用上の注意 | フォームによる受付は入力日の翌日から60日後までとなっております。選択頂きました日時でご予約頂けない場合がございます。予めご了承下さい。当日のご来店については、お電話にて承ります。 | ||
| 入居可能日 | |||
| 情報更新日 | 2026/04/29
次回更新日は情報更新日より14日以内 |
||
〒 573-0027
大阪府枚方市大垣内町1丁目1-1 朝日生命枚方ビル5F
免許番号:宅地建物取引業者免許:国土交通大臣免許(12)第2846号 賃貸住宅管理業者登録制度:国土交通大臣(02)第004651号
TEL:050-7586-3005
営業時間:10:00-18:00
ご予約・空室確認はこちらSAME CONDITIONS

















